Bebauungsplan Gewerbegebiet Nord II

Bebauungsplan Gewerbegebiet Nord II

Bebauungsplan Gewerbegebiet Nord II Bebauungsplan für Gewerbeflächen und eine Agri-PV-Anlage in Uffenheim Auftraggeber:       Gewerbebetrieb, Stadt Uffenheim Auftragsumfang:  Bebauungsplan Lph 1-3 Flächenplanung, Änderung des FNP, Umweltbericht, saP,...
Bauleitplanung IG GollIpp

Bauleitplanung IG GollIpp

Bauleitplanung IG GollIpp Bauleitplanung für das gesamte Industrie- und Gewerbegebiet GollIpp an der A7-Anschlussstelle Gollhofen Neuaufstellung und Änderung von 6 verschiedenen Bebauungsplänen Auftraggeber:       Zweckverband GollIpp (Zusammenschluss von 14 Gemeinden...
Vorhaben- und Erschließungsplan Buchenweg

Vorhaben- und Erschließungsplan Buchenweg

Vorhaben- und Erschließungsplan B Vorhaben- und Erschließungsplan für ein Fachmarktzentrum in Uffenheim Auftraggeber:        Gewerbetreibende, Stadt Uffenheim Auftragsumfang:  Lph 1-3 Flächenplanung, Änderung des Flächennutzungsplanes, Umweltbericht, Grünordnungsplan,...
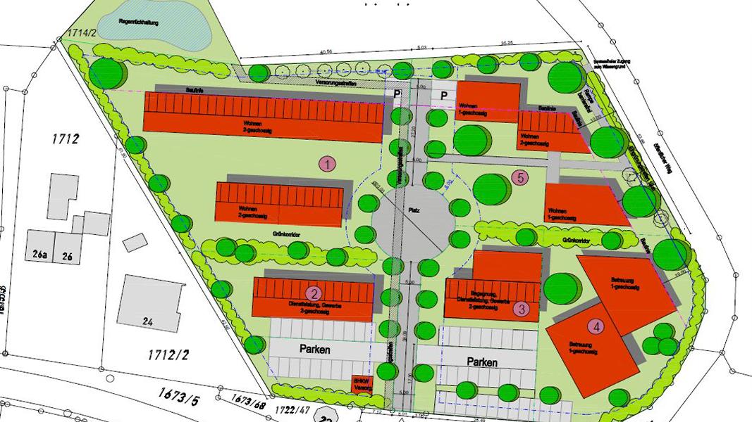
Städtebaulicher Masterplan KES 20

Städtebaulicher Masterplan KES 20

Städtebaulicher Masterplan KES 20 Quartiersbezogener städtebaulicher Masterplan in Neustadt a. d. Aisch Auftraggeber:        Lebenshilfe Neustadt a. d. Aisch – Bad Windsheim e.V. Auftragsumfang:  Städtebauliches Konzept, Grün- und Freiflächenkonzept,...
Bebauungsplan Rimpar

Bebauungsplan Rimpar

Bebauungsplan Rimpar Bebauungsplan für eine Wohngebietserweiterung in Maidbronn, Rimpar Auftraggeber:        Marktgemeinde Rimpar Auftragsumfang:  Bebauungsplan Lph 1-3 Flächenplanung, Umweltbericht, saP, Ausgleichsflächen,...